Why You Should Use a Fully Trained Company for Asbestos Garage Removal in the UK
Under The Control of Asbestos Regulations 2012, asbestos removal must be carried out safely to prevent harmful exposure.


The Dangers of Using an un-trained Company
Some untrained operators offer cheap asbestos removal, but cutting corners on safety and legal disposal could put you at risk. Here’s why using an unlicensed company is dangerous:
- Fly-Tipping Fines & Legal Consequences – If asbestos waste from your garage is found dumped illegally, you, as the homeowner, could face fines of up to £50,000 or even imprisonment under the Environmental Protection Act 1990.
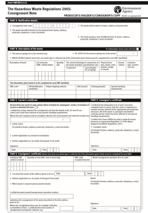
- No Proper Documentation – Without a waste consignment note, you have no legal proof that your asbestos waste was disposed of correctly, leaving you vulnerable to prosecution.
- Health & Safety Risks – Unlicensed contractors may not follow correct safety procedures, putting you and your community at risk of asbestos exposure.
Why You Should Always Choose a Fully Trained Asbestos Removal Company
To ensure your asbestos garage is removed safely and legally, always use a fully trained asbestos removal company that:
✅ Follows
HSE regulations for safe removal and disposal
✅ Provides a
waste consignment note (WCN) as legal proof of disposal
✅ Disposes of asbestos at an
Environment Agency-approved facility
✅ Protects you from fines, legal action, and unnecessary health risks
Protect Yourself – Choose a Legal Asbestos Removal Service
Don’t take risks with asbestos. If you need your asbestos garage removed, make sure you choose a licensed and compliant company to handle the job. Contact us today for a safe, legal, and hassle-free asbestos removal service that guarantees full compliance with UK regulations.
